Etude structurelle pour l’installation de panneaux photovoltaïques
Contexte du projet
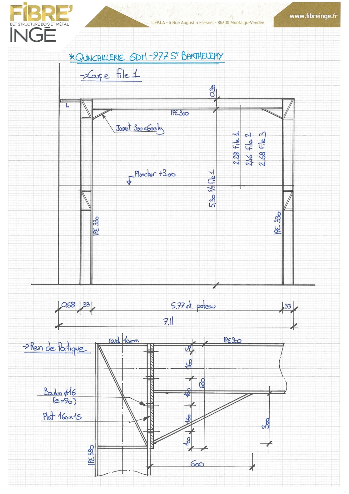
Dans le cadre de la transition énergétique aux Antilles, notre bureau d’études a accompagné un projet photovoltaïque à Saint-Barthélemy. L’objectif : permettre l’installation de panneaux solaires sur un bâtiment existant. Sa charpente mixte bois-métal, légère et composée de petites sections, présentait des capacités limitées face aux contraintes sismiques et cycloniques. Nous avons donc réalisé une analyse structurelle complète pour évaluer la résistance de l’ouvrage et définir les renforcements nécessaires, garantissant la sécurité et la pérennité de l’installation solaire.
Mission de Fibre’Ingé
Fibre’Ingé s’est vu confier une mission d’expertise structurelle consistant à réaliser un relevé précis sur site, à analyser visuellement et mécaniquement la charpente existante, puis à formuler des orientations de renforcement compatibles avec les futures études d’exécution. Cette mission a été menée en partenariat avec le bureau d’études techniques STR Concept, basé à Saint-Martin.
Défis rencontrés et solutions proposées
La mission a représenté un défi logistique important : planifier le déplacement à Saint-Barthélemy, coordonner transport et hébergement pour une intervention efficace et économique. Les travaux ont été réalisés sur un site occupé, nécessitant une organisation limitant nuisances et interruptions.
Résultats obtenus
Grâce à l’intervention de Fibre’Ingé, le maître d’ouvrage dispose désormais de solutions de renforcement ciblées, permettant une réhabilitation durable et conforme aux exigences réglementaires locales. Le tout sans devoir remplacer l’intégralité de la charpente, limitant ainsi les coûts, les délais, et surtout l’impact carbone du projet.





